lundi 1 novembre 2010
Intelligence architecturale pour vaincre la pauvreté.
Quinta Monroy, Chili : Comment reloger 100 familles qui occupent illégalement un
terrain de 5000 m ² dans le centre ville de Iquique ? 
L’agence d’architecture chilienne Elemental a dû travailler,
dans le cadre de l'actuelle politique du logement, avec une subvention de $
7,500 US par famille, laquelle été destinée à payer le terrain,
l'infrastructure et l'architecture. Au Chili, avec 7.500 dollars, il est
possible de construire à peine 30 m².
Malgré le prix du site et la pression immobilière,
l'objectif était de conserver les familles dans le même site, au lieu de les
déplacer vers la périphérie.
Si 1 maison familiale = 1 lot, le terrain ne pouvait
accueillir que 30 familles dans le site. Compte tenu du prix du terrain, il
était impossible de loger plus de famille. Il eu été plus rentable de créer un
ensemble de logement sociaux loin du centre-ville, mais il aurait été loin des offres
d’emploi, d'éducation, de transport et de santé qu’offrent les villes. Cette logique économique a tendance éloigner les logements sociaux dans un étalement urbain pauvres, contribuant à la création de banlieue
défavorisée et entraînant conflits sociaux et inégalités.
Afin de réussir à maintenir les familles sur ce terrain de
centre ville, les architectes ont imaginés plusieurs hypothèses : 
Une hypothèse aurait été de réduire la largeur du lot pour
qu’il coïncide avec la largeur de la maison, et, en outre, avec la largeur
d’une pièce, ce qui aurait permis d’augmenter la capacité d’accueil du site à 66
familles. Le problème avec cette typologie, c'est que chaque fois qu'une
famille veut ajouter une nouvelle pièce, il bloque l'accès à la lumière et de
ventilation des salles précédentes. De plus, il compromet la vie privée en
obligeant la circulation d’une pièce à l’autre. Le résultat est un projet
inefficacité, incitant le surpeuplement et la promiscuité. 
La tour, qui est très efficace en termes d'utilisation des
terres, aurait été une autre hypothèse. Mais ce type de développement urbain ne
permet pas les extensions et les évolutions. Ce qui est recherché, c’est que
chaque maison puisse au moins doubler sa surface initiale.
- Comment loger le maximum de familles avec la subvention de l’Etat ?
L’objectif que se sont donnés les architectes était de loger
les 100 familles présentes sur le site avec le budget alloué (7.500 US $ par
familles) soit construire un ensemble de 100 appartements pour un budget de
750.000 US $, avec la possibilité de doubler la surface construite
ultérieurement. En effet, la subvention d’aide au logement reçu de l'État est,
de loin, la plus grande aide qui ne peut être espérée. Donc, si cette
subvention peut prendre de la valeur au fil du temps, cela pourrait être un
tournant important dans la lutte contre la pauvreté. 
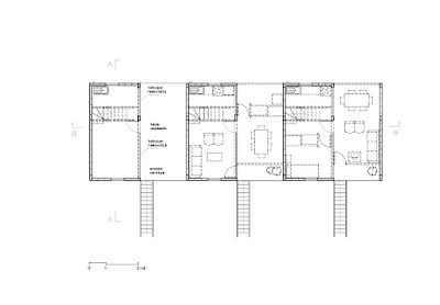
- Densité, collectivité et évolutivité.
Premièrement, la rentabilisation du site n’est possible que
par la recherche d’une densité suffisante, sans tomber dans la surpopulation.
Deuxièmement, la mise à disposition d'un espace collectif
pour cette "grande famille" est une question clé pour sortir les
familles de la pauvreté. Entre l'espace privé et public, un espace collectif
pour environ 20 familles a été créé. Cette espace collectif permet la cohésion
social du lieu et l’entraide des ces familles fragiles.
Troisièmement, afin de permettre de doubler l’espace
construit, qui sera finalement en auto-construction, la forme urbaine devait
être suffisamment poreuse pour permettre à chaque unité de se développer au
sein de la même structure. Le bâtiment initial doit donc fournir un cadre afin
d'éviter tout effet négatif de l'auto-construction sur l'environnement urbain,
mais aussi pour faciliter le processus d’expansion) moindre coût.
Enfin, au lieu de fournir de petites maisons de 30m² où tout
est petit, les architectes ont fourni des maisons où juste la partie
essentielle est construite : cuisines, salles de bains, escaliers, murs de
séparation pour le scénario final d'une maison de 72 m².
En conclusion, avec un budget pour construire une
demi-maison, les architectes ont choisi de construire la moitié de la maison
que la famille ne sera jamais en mesure de réaliser soi-même. L’autre partie,
qui permet le l’expansion de la famille en la maintenant sur le site, est
laissée libre pour l’auto-construction, peu importe le budget, l'énergie ou de
temps qu'ils y passent. 
Un projet immobilier ou la conception architecturale a
permis de vaincre la pauvreté et les effets pervers des logiques économiques du
logement social.
Architectes: élémentaire - Alejandro Aravena, Alfonso
Montero, Tomás Cortese, Emilio de la Cerda
Lieu: Iquique, Chili.
Client: Gobierno régionales de Tarapacá / Programa
Chile-Barrio del Gobierno de Chile.
Ingénierie: Juan Carlos de la Llera et José Gajardo.
Entrepreneur et Services: Proingel, Guerra Abraham, Loga
Constructora SA
Budget: 204 $ US / m²
Année du projet: 2003
Année de construction: 2004
Temps d'exécution: 9 mois
Matériaux: béton de ciment et briques
Superficie du site: 5000 m²
Espace habitable: 3500 m²
Photographies: Elemental - Cristóbal Palma - Jalocha
Tadeuz
Inscription à :
Publier les commentaires (Atom)
A propos
Après Actes & Cités, une émission d'architecture sur Radio Libertaire (2003-2006) voici un webzine d'architecture qui a pour objectif de mettre en avant tout le positif en matière de d'architecture équitable, sociale responsable, respectueuse de l'environnement, ou qui apporte un + à la création architecturale.
Architecture Positive on Facebook
Tribune
Pour proposer un projet, un sujet, une contribution, ce Webzine est ouvert. Comment faire ?
Newsletter
A voir aussi...
- AnArchitecture
- Annuaire de blogs
- Annuaires Arts Quoi2neuf
- ArchDaily
- Archello
- Archi-made
- Archicool
- Architecture de buzz!
- Architecture Durable
- Architecture pour l'humanité
- Buzzecolo | Ecoconstruction
- Construction Maison
- CyberArchi
- Dezeen
- Détails d'architecture
- Détours d'architecture
- Greendiary | Design
- InHabitat/Architecture
- L'Abeille et l'Architecte
- Maison.com
- MLCstudio Blog
- Mobiliz
- Muuuz
- Projets Architecture Urbanisme
- The Architectural Review
Tags
Afrique
Agriculture
Alternative
arbres
Art
Association
Audace
auto-construction
autonome
bangkok
Bangladesh
bidonvilles
Bois
Chili
Chine
Collectifs
Culture
dune
Durable
Egypte
Energie positive
Ephémere
Equitable
Expression
Folie
France
Friche
HLM
Hollande
idée
Katrina
KLH
Kobé
LEED
Lille
low-tech
mélèze
Paille
Paris
Parking
passif
Paysage
Pétrole
Portugal
Préfa
rêve
Roms
Savoie
SDF
Seisme
Shanghai 2010
Social
structure
terre crue
Tours
Transformation
Urgence
Utopie
vert
vidéo
Les plus lus...
- 
Après le triomphe de la maison en brique, l’engouement pour la maison en bois, la maison en paille reste encore victime des préjugés ...
- 
Quinta Monroy, Chili : Comment reloger 100 familles qui occupent illégalement un terrain de 5000 m ² dans le centre ville de Iquique ? ...
- 
L’Afrique produit une architecture contemporaine qui mérite de s’y attarder. Francis Kéré, architecte au Burkina Faso, défend une arc...
- 
Une autre découverte des NAJAP 2010, la Fabrique d’Architecture . Pierre et Rémi Janin, deux frères issus d’une famille d’agriculteurs à Ve...
- 
Shenzhen est passé, en moins de 30 ans d’un village de pêcheur à une mégalopole de 12 millions d’habitants. Voisine de Hong-Kong, le Por...
- 
A Lille, l’agence ION livre l’extension d’un immeuble de bureaux pour la société BORALEX. Un bâtiment en KLH, pour une entreprise spécial...
- 
Depuis trois ans, une douzaine de famille Roms vit à Viry-Châtillon dans des conditions précaires. Une trentaine d’étudiants en 4 ème an...
- 
A l’heure où l’on parle d’architecture de l’urgence, les solutions architecturales mises en œuvre n’ont pas toujours fait preuve de l...
- 
Bien connu pour ses audaces architecturales et ses formes non standard, Tom Mayne (Morphosis) est également champion des bâtiments basse...
- 
L’histoire du Treehotel est née d’un documentaire tourné à Harads, dans la forêt boréale de Laponie suédoise. Tree Lovers , de Jonas Se...
 06:33 | Publié par
Unknown
06:33 | Publié par
Unknown 













 Libellés :
Libellés :
 
 Articles
Articles
 
 
 
 
 
 
 
 
 
 
 
 

0 commentaires:
Enregistrer un commentaire